Mietwohnung

Modernisierte 2-Zi.- Erdgeschosswohnung in Walle-Westend

28217 Bremen Walle (Westend)

ID: SIMW113
652 €
Zu vermieten

1953

Baujahr

1

Schlafzimmer

1

Badezimmer

Gäste WC

Garage(n)

1

Stockwerk(e)

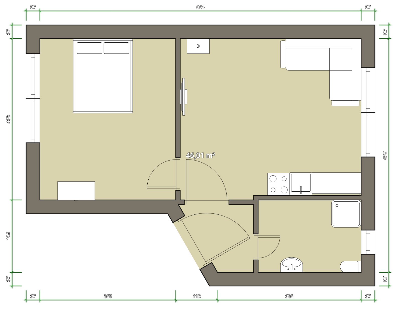
45m²

Fläche

Grundstücksfläche

Beschreibung

Frisch sanierte 2-Zimmer-Erdgeschosswohnung mit Charme Willkommen in Ihrem neuen Zuhause! Diese frisch modernisierte Wohnung kombiniert zeitgemäßen Wohnkomfort mit einer unschlagbaren Lage im beliebten Bremer Westen. Ideal für Singles oder Paare, die das urbane Leben in einem gepflegten Umfeld suchen. Die Highlights auf einen Blick Zustand: Frisch saniert und modernisiert – Erstbezug nach Modernisierung. Wohnkonzept: Offenes, helles Wohnzimmer mit integrierter Küchenzeile. Komfort: Separates Schlafzimmer für optimale Privatsphäre. Haus: Sehr ruhiges und gepflegtes Wohnhaus. Küche: Eine moderne Einbauküche wird derzeit montiert. Diese Erdgeschosswohnung in der Wartburgstraße besticht durch ihren durchdachten Grundriss und die hochwertige Ausstattung. Das Herzstück der Wohnung ist der Wohnbereich mit offener Küchenzeile. Die Küche wird mit mit einem E-Herd und Backofen ausgestattet, sodass Sie direkt mit dem Kochen loslegen können. Zusätzlichen Stauraum bietet ein eigener Kellerraum. Für Ihre Wäsche steht eine gemeinschaftliche Waschküche im Keller zur Verfügung. Miete und Nebenkosten: Kaltmiete 650,00 € Nebenkosten 100,00 € Gesamtmiete (exkl. Heizung/Strom) 792,00 € Hinweis: Die Kosten für Strom und Gas (Etagenheizung) sind nicht in den Nebenkosten enthalten und werden vom Mieter direkt mit dem Versorger abgerechnet. In den Nebenkosten enthalten: Treppenhaus- und Gehwegreinigung / Winterdienst Kaltwasser & Abwasser Müllabfuhr & Grundsteuer Gebäudeversicherung & Schornsteinfeger Hauswart & Gartenpflege Wartung der Heizungsanlage sowie Allgemeinstrom Die Wohnung befindet sich in den letzten Zügen der Sanierung. Besichtigungstermine sind in den nächsten Tagen möglich. Bei Interesse freuen wir uns über Ihre Nachricht.

Ausstattung

Küche inkl. Backofen und Herd, Badezimmer mit Dusche, Neue Laminat-Fußböden in Holzoptik in den Wohnbereichen, Fließen im Badzimmer, Hohe Zimmerdecken, Eigene Heizungstherme, Weiß verputzte Wände, Waschküche im Keller, Separater Kellerraum, Anschluss für Internet/Kabelfernsehen vorhanden

Energieeffizienz

F
Art: Energieverbrauchsausweis Energieverbrauch: 176.9 kWh/(m².a) Energieträger: Erdgas Baujahr laut Energieausweis: 1954 Letzte Modernisierung: 2026 Energieeffizienzklasse: F Gebäudeart: Mehrfamilienhaus

Lage

Lage: Zentral & Urban Walle-Westend gehört zu den lebendigsten und gefragtesten Vierteln Bremens. Die Wartburgstraße bietet Ihnen die perfekte Balance zwischen einer ruhigen Seitenstraße und bester Anbindung: ÖPNV: Die Straßenbahnlinien 2 und 10 sind in nur 3 Gehminuten erreichbar. Mobilität: Der Bremer Hauptbahnhof ist nur wenige Fahrminuten entfernt. Freizeit & Shopping: Die Überseestadt mit ihrer Gastronomie sowie das Einkaufszentrum Waterfront sind in kürzester Zeit mit der Bahn erreichbar. Nahversorgung: Supermärkte – Cafés und kleine Läden befinden sich in direkter Nachbarschaft.

Standort

Infrastruktur

Schulen, Arztpraxen, Kitas, div. Einkaufsmöglichkeiten, Bus und Bahnhaltestellen in unmittelbarer Umgebung.

Provisionshinweis

Keine zusätzliche Maklerprovision für den Mieter!

Rechtliches

Für die im Exposé gemachten Angaben übernehmen wir keine Gewähr. Die gemachten Angaben basieren ausschließlich auf Information unseres Auftraggebers. Somit übernehmen wir keine Haftung oder Gewähr für die Vollständigkeit, Richtigkeit und Aktualität dieser Angaben. Nachträgliche Änderungen und Korrekturen im Exposé behalten wir uns vor. Irrtümer und Zwischenvermietung bleiben vorbehalten.

Siems IMMOBILIEN

Experten für Immobilien in Bremen

Kontakt

Anfrage stellen

Reset password

Geben Sie Ihre E-Mail-Adresse ein und wir senden Ihnen einen Link zum Ändern Ihres Passworts.

Beginnen Sie mit Ihrem Konto

um deine Lieblingshäuser und mehr zu speichern

Registrieren Sie sich mit Ihrer E-Mail Adresse

Beginnen Sie mit Ihrem Konto

um deine Lieblingshäuser und mehr zu speichern

By clicking the «ANMELDUNG» button you agree to the Nutzungsbedingungen and Datenschutzpolitik
Powered by Estatik